0 Firma Labora Group Poznań zajmuje się produkcją, montażem i serwisem maszyn do produkcji szerokiej gamy peletu i innych maszyn i materiałów służących do ogrzewania powierzchni
+48 663 336 322
Urządzenia

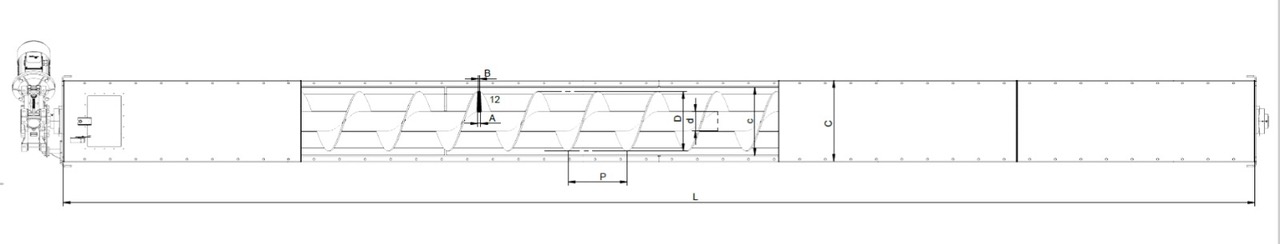
Podajniki ślimakowe

Spośród transportu mechanicznego surowców, przenośniki ślimakowe stanowią podstawową grupę, ponieważ wyróżniają się szczególnymi cechami i zaletami:

  • Zamknięta konstrukcja pozwala na czysty transport (brak pylenia - brak zagrożenia),
  • Ciągła spirala powoduje, że surowce można łatwo dozować,
  • Może być kilka zasypów,
  • Może być kilka wysypów,
  • Transport w różnych kierunkach:
    • W poziomie,
    • Pod kątem,
    • W szczególnych przypadkach - pionowo w górę,
  • Można łączyć kilka przenośników ze sobą,
  • Surowiec w przenośnikach ślimakowych miesza się,
  • Przeznaczone do suchych i mokrych surowców,
  • Przy odpowiednim zastosowaniu można transportować nawet dużą frakcję,
  • Różne długości - od kilkudziesięciu cm do kilkudziesięciu metrów,
  • Różne wydajności - od kilku do kilkudziesięciu m3/h,
  • Łatwe w obsłudze,
  • Możliwość czyszczenia i mycia,

W związku z tak dużą różnorodnością cech, przenośniki ślimakowe różnią się od siebie:

  • Przeznaczeniem,
  • Obudową,
  • Wykonaniem,
  • Zabezpieczeniem,
  • Obsługą,
  • Sterowaniem,

Podstawowe cechy naszych przenośników ślimakowych:

  • Przeznaczone dla przemysłu,
  • Niezniszczalna spirala wykonana z grubego płaskownika zwiniętego (lub z grubej blachy zespawanej w spiralę) i przyspawanego na grubym rdzeniu - nadaje się do transportowania również trudnych materiałów,
  • Obudowa zbudowana z modułowych elementów wielogiętych wykonanych z grubej blachy ocynkowanej, które są montowane „na zakładkę” - Stanowią bardzo sztywny korpus, a w razie zużycia są łatwe do wymiany,
  • Zamknięcie korpusu klapami od góry, co w razie awarii przenośnika daje możliwość łatwego dojścia do jego środka,
  • Modułowa konstrukcja umożliwia wykonanie różnych długości,
  • Specjalnie zaprojektowana podpora umożliwia ustawienie kąta w pełnym zakresie,
  • Zasyp i wysyp tak zaprojektowane, że mogą być zakładane na montażu,
  • Przy długościach powyżej 5 m moduły są łączone dodatkowym łożyskiem,
  • Standardowo zabezpieczenie silnikowe w szafie, opcjonalnie dodatkowe sprzęgło,
  • Prędkość obrotowa nie przekraczała 70 obr/ min.
  • Standardowo przekładnia ślimakowa, opcjonalnie walcowo - stożkowa,
  • Klapa rozprężna nad wysypem,
  • Opcjonalnie - czujnik obrotów,


Maszyny

Oferta maszyn
LABORA GROUP

Suszarnie Magnum

Wymiennik ciepła jest zainstalowany wewnątrz bębna suszarni i jest na grzewany spalinami z pieca na biomasę.

WIĘCEJ
Suszarnie bębnowe

Powietrze jest nośnikiem ciepła i transportuje surowiec, stąd niezbędne jest na wyjściu z suszarni odseparowanie ich od siebie w cyklonie.

WIĘCEJ
Suszarnie taśmowe

Istotne jest, aby wilgotność bezwzględna powietrza/ otoczenia była jak najniższa, co oznacza, że pogoda ma duży wpływ na wydajność procesu w tego typie suszarni.

WIĘCEJ
Suszarnie buforowe

Gorące powietrze przepływa przez złoże suszonego materiału w układzie przeciwprądowym, co umożliwia usunięcie oparów o wilgotności bliskiej 100%.

WIĘCEJ
Peleciarki

Linie są tak skomponowane, żeby koszty eksploatacji były jak najniższe, a proces jest zautomatyzowany przy udziale minimalnej obsługi.

WIĘCEJ
Pakowaczki

Wagowy dozator pozwala na precyzyjnie odmierzenie wagi produktu. Maszyna pakuje produkty sypkie, krystaliczne, ziarniste.

WIĘCEJ
Nagrzewnice powietrza

Zastosowanie przede wszystkim dla obiektów wysokopowierzchniowych do szybkiego ich ogrzania, np.: magazyny, hale produkcyjne, warsztaty samochodowe.

WIĘCEJ
Kotły na pellet

Istotnym aspektem naszych kotłów na pellet jest bardzo niska emisja pyłów i szkodliwych związków w spalinach, w związku z tym jest znacznie mniejsza od wartości dopuszczalnych dla grupy innych kotłów na paliwa stałe i dlatego czyni je urządzeniami w pełni ekologicznymi.

WIĘCEJ